Help us help you. By posting the year, make, model and engine near the beginning of your help request, followed by the symptoms (no start, high idle, misfire etc.) Along with any prevalent Diagnostic Trouble Codes, aka DTCs, other forum members will be able to help you get to a solution more quickly and easily!

Short or bad ground problem

  • Rotatingrotar89
  • Rotatingrotar89's Avatar Topic Author
  • Offline
  • New Member
  • New Member
More
7 years 9 months ago #21570 by Rotatingrotar89
Short or bad ground problem was created by Rotatingrotar89
Hope someone has a few ideas they can throw my way.

Okay so I am working on A 2004 audi a4 convertible w/ a 3.0 v6. Problem is I caused a short. Had the entire top end of the engine torn apart for a valve job. Then put it all back together only I made a huge mistake!! it's European and I'm use to working on domestic and jdm cars.... Well I accidently plugged a hot wire going from the starter to the alternator into a block ground. That wire should have been plugged to the alternator but I hot confused as blk can also be ground on the cars. Well any way the car started after realizing my mess up. Only started twice though and on the second time it shut off and just cranks sometimes it won't crank though.

It has no codes through regular obd2 only has codes using obd11 scan tool. The main one I saw was low voltage to ecu and the fuel pump doesn't sound.

I also noticed with a test light after unplugging negative terminal from batt...batt post[neg] to any ground on the car gets voltage it lights up....
The second I put the test light on the negative terminal of the vehicle and plug it to the negative battery post the light goes away

Some other strange things I noticed when I unplugged the vehicle computer and set my test light to ground when touching the wht/blk wire on the computer harness I would get the ecu relay to activate with the key out of the ignition. Also noticed when I activated the relay I checked the voltage only had 3.52 volts with a voltage drop of 8.89volts

I have plenty of schematics if someone with more knowledge is willing to help me out and teach me something or point out what I'm missing been working on this self caused electrical issue for a month now this is where I'm at

Please Log in or Create an account to join the conversation.

  • Tyler
  • Tyler's Avatar
  • Offline
  • Moderator
  • Moderator
  • Full time HACK since 2012
More
7 years 9 months ago #21582 by Tyler
Replied by Tyler on topic Short or bad ground problem
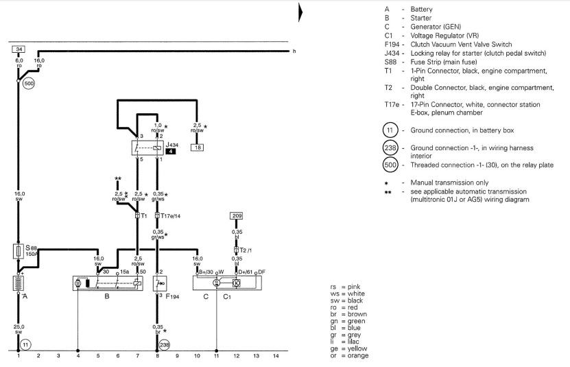
Hey Rotatingrotar89! Sorry to hear this one didn't go well. :( I grabbed a battery diagram for reference:



There's a ton of different direction you could go with this, and I'm hopeful others chime in with their thoughts. For me, I'd chase that battery > starter > alternator circuit and the intermittent no crank first. A voltage drop from the B+ post (not the cable end) to the alternator B+ post would be a good place to start. When the engine is a no crank would be best. If you find excessive drop, work your way closer to the battery until you start getting good readings.

A quick voltage drop across that main 150A fuse would be a good idea, too.
Attachments:

Please Log in or Create an account to join the conversation.

  • Chad
  • Chad's Avatar
  • Offline
  • Moderator
  • Moderator
  • I am not a parts changer.
More
7 years 9 months ago #21584 by Chad
Replied by Chad on topic Short or bad ground problem

pole71 wrote: Do you have a ground distribution diagram? I think you have burnt 1, or more, grounds. You must have put the battery cable on very quickly, and completely, to avoid being showered with sparks instantly. Since you mentioned no sparks, I can only assume that smaller ground wires were burnt and acted as fuses.


"Knowledge is a weapon. Arm yourself, well, before going to do battle."
"Understanding a question is half an answer."

I have learned more by being wrong, than I have by being right. :-)

Please Log in or Create an account to join the conversation.

  • Chad
  • Chad's Avatar
  • Offline
  • Moderator
  • Moderator
  • I am not a parts changer.
More
7 years 9 months ago - 7 years 9 months ago #21585 by Chad
Replied by Chad on topic Short or bad ground problem

pole71 wrote:

Rotatingrotar89 wrote: I also noticed with a test light after unplugging negative terminal from batt...batt post[neg] to any ground on the car gets voltage it lights up....
The second I put the test light on the negative terminal of the vehicle and plug it to the negative battery post the light goes away



That is to be expected, if there is something using the BAT + , (such as a dome light, radio, various modules, etc).

Every thing needs power and ground to work. When you disconnected the negative battery cable, somewhere, a light went out, a module powered down, etc. That/those components are still looking for a ground. When you connect a test light to battery negative, and then touch the engine block, you completed the circuit and gave those components the path to ground they were waiting for. Because the test light it is, essentially, a resistor, the components do not get a GOOD ground and will not work. But, the current flow is still there. That is why the test light illuminates. Or, this could be a shorted component finding ground.


"Knowledge is a weapon. Arm yourself, well, before going to do battle."
"Understanding a question is half an answer."

I have learned more by being wrong, than I have by being right. :-)
Last edit: 7 years 9 months ago by Chad.

Please Log in or Create an account to join the conversation.

  • Rotatingrotar89
  • Rotatingrotar89's Avatar Topic Author
  • Offline
  • New Member
  • New Member
More
7 years 8 months ago #22391 by Rotatingrotar89
Okay so I got a new relay with no luck on solving my starting issue.
I recently used a meter and found (17) shorts in total:( 7 )in various relays one of those being the ecu relay that I swapped. (9) in my fuse box three of which are ecu related. and (1) in my ignition switch
The short is only present in the ignition when it is switched to the off position, yet when turned to the on position it becomes an open

Please give me some advice otherwise I might just have to lose more money at the dealership

Please Log in or Create an account to join the conversation.

Time to create page: 0.316 seconds